著作権所有©常州創霊機械有限公司著作権所有。 Web Development by Wangke
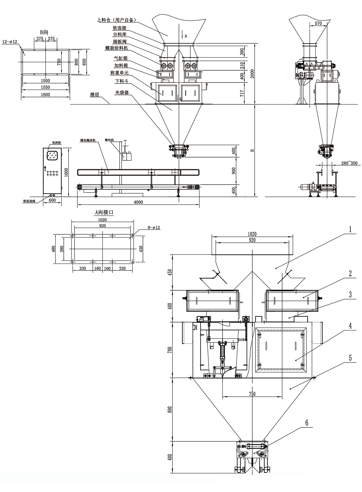
正味重量定量包装秤(双秤):2つの秤量バケツ、2セットの秤量システムがある。単一の秤量ホッパーで材料を秤量した後、交互に運転することで包装袋に材料を入れ、測定の速度と精度を向上させた。この製品は独立して使用することもでき、食品、飼料、ペットフード、農業、化学工業、製薬または鉱物などの業界の包装生産ラインに完全に統合することもできる。この製品はコンベアとミシンと結合し、半自動包装糸となっている。製品は自動袋詰め機、自動折りたたみミシン、成形コンベア、自動積み上げ機などの全自動包装積み上げ生産ラインを備えている。

私たちの知識と専門的なチームがお客様を指導します
連絡